Продається капітальний будинок-дача Фастівський район, с. Мотовилівка (№ 22-439-422)
Цена: 50 000 $

Адрес: Мотовиловская Слобидка, Фастовский, Киевская
Характеристики
| Цена: | 50 000 $ |
|---|---|
| № объекта: | 22-439-422 |
| Тип: | дом |
| Этажей: | 1 |
| Спален: | 2 |
| Площадь дома: | 55 м2 |
| Участок: | 6 сот |
| ПН: | 411671 |
| Г/П: | 2010 |
| РЕМОНТ: | Жилое |
| ВИД НЕДВИЖ.: | Дом |
Описание
ПН 411671.Продам сучасний будинок для цілорічного проживання біля Києва
Продається капітальний будинок-дача 2018 року побудови в Київській області, Фастівський район, с. Мотовилівка. Ідеальний варіант для життя за містом із зручним доїздом до Києва.
Будинок розташований між станціями електрички Фастів – Київ, зупинка Півні — всього 5–7 хвилин пішки. До Києва — 50–60 хвилин електричкою, також є маршрутка до метро «Іподром» (близько 45 хв). Зручний автомобільний маршрут по Одеській трасі.
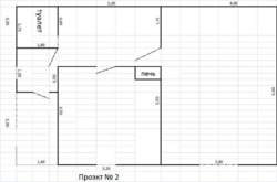
Будинок якісно утеплений, добре тримає тепло навіть при –30 °C. Опалення — піч + тепловий насос (кондиціонер), який ефективно працює навіть при –32 °C. Є запас дров на всю зиму. Планування: дві кімнати, кухня, санвузол. Будинок повністю придатний для цілорічного проживання.
На ділянці 6 соток (приватизована) розташований двоповерховий гараж з можливістю літнього проживання на другому поверсі. Газ проходить біля ділянки, приєднання вже оплачене, є всі підтверджувальні документи. Також наявні документи БТІ на будинок.
Поруч ліс (200 м), у селі є мальовничі ставки — тиша, свіже повітря та комфорт для життя й відпочинку.












