Продаж будинку 75м2 в котеджному містечку Фортеця Колонщини.'Українське село' та 'Добропарк'  (№ 22-415-364)

Цена: 50 000 $

Продаж будинку 75м2 в котеджному містечку Фортеця Колонщини.'Українське село' та 'Добропарк' фото 1

Характеристики

Цена: 50 000 $
№ объекта: 22-415-364
Тип: дом
Этажей: 1
Спален: 3
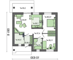
Площадь дома: 75 м2
Участок: 7 сот
ПН: 411580
Г/П: 2000
РЕМОНТ: После строителей
ВИД НЕДВИЖ.: Дом

Адрес: Киевская, Макаровский, Колонщина

ПН 411580.Продаж будинку 75м2 в котеджному містечку Фортеця Колонщини, яке розташоване в 30км від метро Житомирська, траса Київ-Чоп. Поряд знаходиться етнічний музей 'Українське село' та 'Добропарк'.
Будинок в якому заплановано 2 спальні кімнати, санвузол, технічне приміщення де розташовуються всі технічні комунікації в тому числі опалювальний котел та кухня-вітальня з виходом на терасу.
На даному етапі:
- будинок підключений до електропостачання 10 кВт (3 фази) - заведений интернет кабель та підключений до мережі провайдера
- фукціонуюча - скважина 38м
- Підготовлена стеля під фінішне оздоровлення.
- Мінвата 200мм
- розведення опалення під батареї та бетонна стяжка підлоги.
Матеріали будівництва:
- Стіни - газоблок
- Дах -металочерепиця
- Вікна - металопластикові
Прекрасний варіант для життя та відпочинку.

Объект на карте

Заказать обратный звонок