Продам будинок с.Яблунівка,СТ Яблунівські сади. Підігрів підлоги,тераса,сауна,балкон (№ 22-374-824)
Цена: 86 000 $

Характеристики
Цена: | 86 000 $ |
---|---|
№ объекта: | 22-374-824 |
Тип: | дом |
Этажей: | 2 |
Спален: | 3 |
Площадь дома: | 120 м2 |
Участок: | 8,9 сот |
ПН: | 41928 |
Г/П: | После 2015 |
РЕМОНТ: | Частично с ремонтом |
ВИД НЕДВИЖ.: | Дом |
Адрес: Киевская, Макаровский, Яблуновка, СТ Яблунівські сади
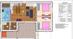
ПН 41928.Продається будинок в СТ Яблунівські сади с. Яблунівка Фастівського (раніше Макарівського) району, 35 км від Києва. Поряд ліс, річка, озеро. Загальна площа 120 кв. м. + тераса 23 кв.м, ділянка 8,9 соток.
Будинок з якісних матеріалів. Побудований з кримського ракушняку, зовнішнє утеплення - пінополістерол 10 см під декоративною штукатуркою, ширина стіни близько 50 см, дах фінська металочерепиця. Гарне планування: 1 поверх – кухня-вітальня 28 кв.м., 2 спальні по 10 кв.м., прихожа/котельня, санвузол з душовою кабіною, сауна. 2 поверх - друга вітальня 25 кв.м, спальня 20 кв.м, санвузол 2,5 кв.м., засклений балкон 4 кв. м.
Перший поверх майже закінчений ремонт (ламінат, плитка, двері, шпалери у спальнях), другий поверх під чистову обробку. Дизайн-проект всього будинку у подарунок. Сходи між поверхами металевий каркас, вікна Rehau (двокамерні), фурнітура Maco. Встановлено підігрів підлоги. Всі комунікації підведені та розведені по будинку: підігрів підлоги, вода – свердловина 25 м; світло – 16 кВт., електрокотел 12 кВт, каналізація – септик, укладено тротуарну плитку.
Є можливість підʼєднання до газу (по вулиці). Житловий кооператив закритого типу - шлагбаум, закриті вулиці, відеонагляд.